2010

Palestra e spazi per le associazioni_ Majano, IT | Concorso in due fasi (2° classificato)

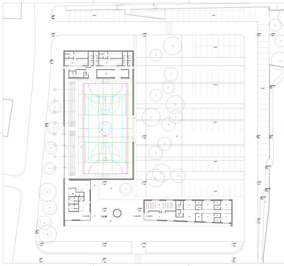
La proposta di progetto prevede un impianto in cui la palestra lungo la via Zorutti e un nuovo fronte sulla piazza Italia, definiscono un spazio urbano con funzioni complesse che possa fungere da testata a un sistema più ampio comprendente la piazza, il parco Cuel dal Fum, gli impianti sportivi e ricreativi all'aperto, le scuole.

Il prospetto sulla piazza sarà caratterizzato da una copertura-portico sotto cui trovano posto le sale per le associazioni e che introduce a uno spazio definito dalla hall della palestra e dalla parete su cui verrà riposizionato il mosaico del maestro Pittino. Un luogo raccolto dove potranno condensarsi i fruitori della struttura sportiva. La copertura inoltre segna l'inizio del percorso pedonale verso il cuel dal fum che rimarrà visibile grazie allo sviluppo orizzontale dell'edificio delle associazioni che, anzi, permetterà di escludere la viste delle auto ospitate dal parcheggio retrostante.

Il parcheggio è pensato come una superficie che possa essere utilizzata al di fuori dell'uso per cui è previsto. La proposta vuole evitare che, come usualmente avviene, le grandi superfici dei parcheggi rimangano inutilizzate trasformandosi in veri e propri vuoti urbani.

 

Progettisti

Giovanni Puntel (capogruppo, strutture)

Maurizio Amerio

Claudia Battaino

Gaetano Ceschia

Federico Mentil

Marco Ragonese (CFCstudio)

Nicola Vignaga

 

Consulenti

SGM consulting (impianti)

 

Collaboratori

Simone Cadamuro

Oliviero Comincino

Sonia Pitis

Luigi Sovernigo

Simone Turrina